Skip to main navigation Skip to main content Skip to page footer

San Savino

2016 halte ich mich eine Weile in Italien auf, präziser formuliert, in den Marken. Mein Gastgeber ist Ugo Lanciotti, ein alter Freund.

Signore Lanciotti besitzt neben dem eigentlichen Hügel, auf welchem sein Haus thront, dem Colle della Guardia, weitere benachbarte Landpartien. Teile seines Besitztums hat er an bäuerliche Nachbarn verpachtet. Andere Teile, insbesondere die Partie von Grundstücksflächen auf dem nördlich benachbarten Hügel erscheinen nutzungstechnisch unbeachtet.

So finden wir gemeinsam zu der Überlegung, ob dort nicht eine moderate Bebauung denkbar ist. Daraus entstehen der Plan und die Überlegung, über eine Nutzung dieser interessanten Hügelsituation nachzudenken. 

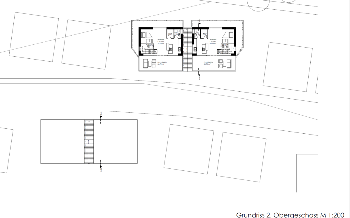
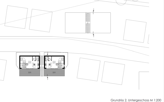
Es werden die San Savino Cubes entwickelt. Eine Ferienhaussiedlung.

Planungsrechtlich hätten wir eine Chance bekommen. Das haben jedenfalls die Gespräche mit den örtlich zuständigen Behörden, die Ugo und ich intensiv geführt haben, ergeben.

Aber es braucht mehr als einen guten Willen. Nämlich die Kraft, eine Idee über die lange Strecke zu tragen. Ugo hat das Projekt aufgrund seines hohen Alters leider nicht weiterverfolgen können.

Zurück bleiben eine Zeichnung und ein paar Grundrisse.

San Savino Cubes.