Skip to main navigation Skip to main content Skip to page footer

Neubau eines Zweifamilienhauses in der Baulücke in Witten

“Schmales Handtuch” mit vier Geschossen

Von einem Bochumer Immobilienunternehmen erhielten wir den Auftrag, eine Baulücke auf einem von der Straße aus in der Höhe abfallenden Grundstück zu schließen. Die vorgeschriebenen seitlichen Abstandsflächen nach § 6 der nordrhein-westfälischen Bauordnung ergaben hier die Gebäudebreite.

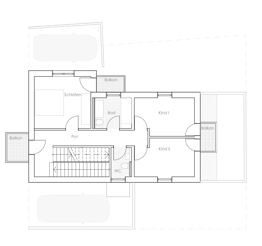
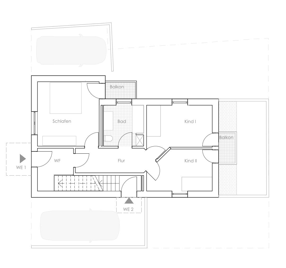
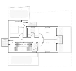
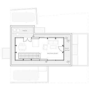
Dem Haus haben wir vier Geschosse geben können. Ein Hanggeschoß und das Erdgeschoss bilden die untere Wohnung. In diese führt der seitliche Hauseingang. Der straßenseitige Hauseingang erschließt das 1. Obergeschoß und das Dachgeschoß.

Beide Wohnungen erhalten jeweils einen offenen PKW-Stellplatz in den seitlichen Abstandsflächen.

Es handelt sich um Wohnflächen von 115 m² und 110 m² auf einem Grundstück von 206 m².

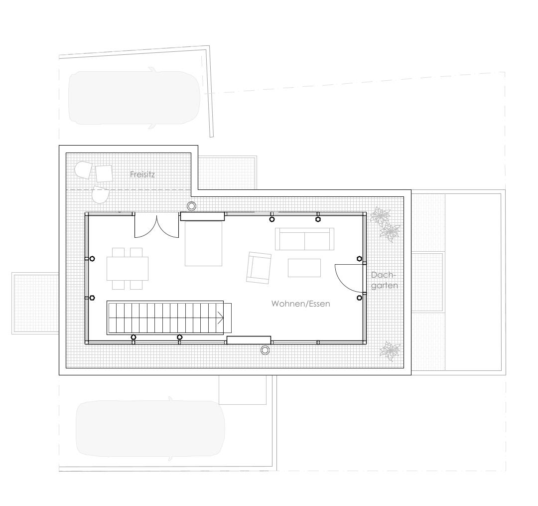
Die untere Wohnung verfügt über einen in den Hang gesetzten Terrassenbereich von 7 m². Für die obere Wohnung wird ein Dachfreisitz angeboten.

In beiden Wohneinheiten sind jeweils die Aufenthaltsräume, zwei Kinderzimmer, die erforderlichen Abstellflächen sowie die haustechnischen Räume vorgesehen.

Das Gebäude definiert sich als weißer kubischer Grundkörper mit einem giebelständigen Satteldachaufsatz.

Die Baugenehmigung liegt seit 2025 uneingeschränkt vor. Es wäre nunmehr Sache der Bauherrenschaft, das GO für die bauliche Umsetzung auszusprechen.