Skip to main navigation Skip to main content Skip to page footer

Werkgelände 06237 Leuna

Als nach der Wiedervereinigung unseres Landes die brachliegenden und baulich vernachlässigten Industriepotentiale des Ostens evaluiert und offeriert wurden, beteiligte sich der Essener Chemiekonzern Goldschmidt AG mit einem Einkauf auf dem riesigen Werksgelände des Chemiekombinates in Leuna. Hier sollte für eine – ebenfalls übernommene – DDR-Tochter, die sich mit Säureprodukten und Rostschutz befasst, ein neuer Vertriebsstandort etabliert werden.
Mit der Architektenarbeit wurde unser Büro beauftragt.
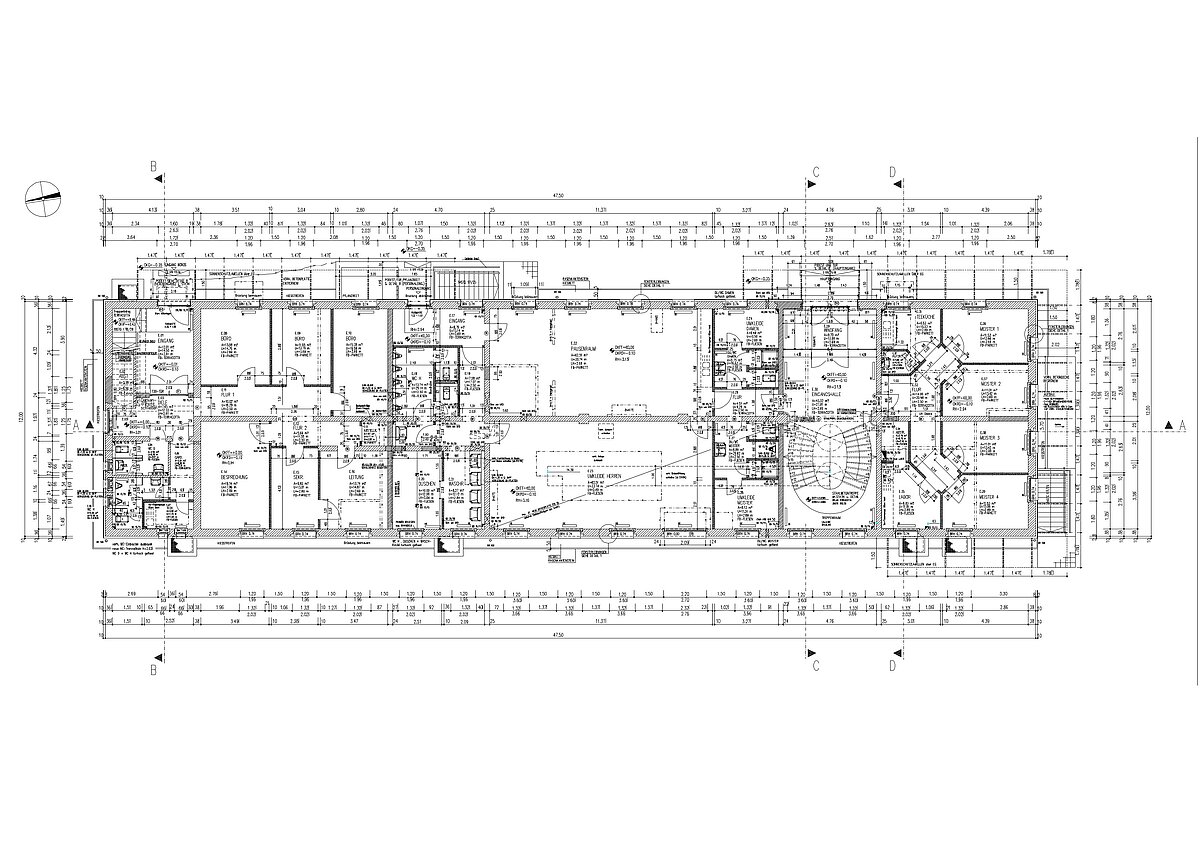
Wir ließen das aufstehende Bauwerk entkernen und anstelle der Sattel-Dach-Konstruktion, die aus ungedämmten vorfabrizierten Betonplatten bestand, eine selbsttragende Halbtonne aus Stahl montieren, die als Kaltdachhülle funktioniert und mit ihren großen Überständen an den Längsseiten den Baukörper gestalterisch fasst.
Das Bauwerk erhielt eine Thermohaut als Fassade, die durch Sonnenschutzblenden gegliedert wird. Die interne Aufteilung wird über ein neues Haupttreppenhaus organisiert. Das Bauwerk beherbergt Arbeitsplätze für die Administration und Sozialräume für gewerbliche Mitarbeitende beiderlei Geschlechts. 
Dieser Runderneuerung gingen intensive Detailuntersuchungen der wiederzuverwendenden Bausubstanz voraus. Die Bauausführung wurde einem Essener Generalunternehmer übertragen. Die Bauzeit betrug ca. 11 Monate.